
Tükör üveg szauna

Építészeti üvegmegoldás

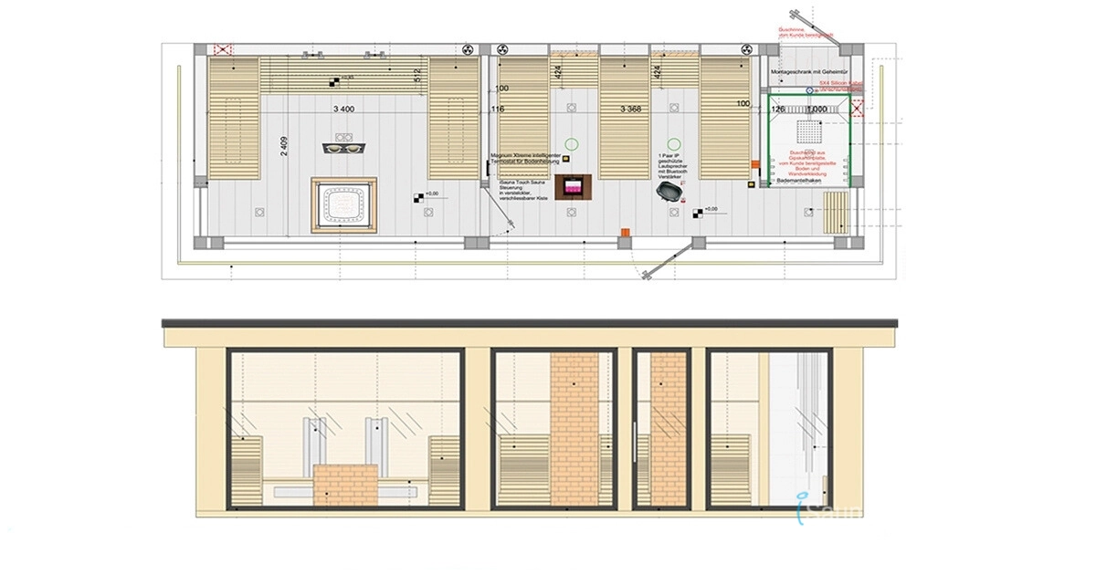
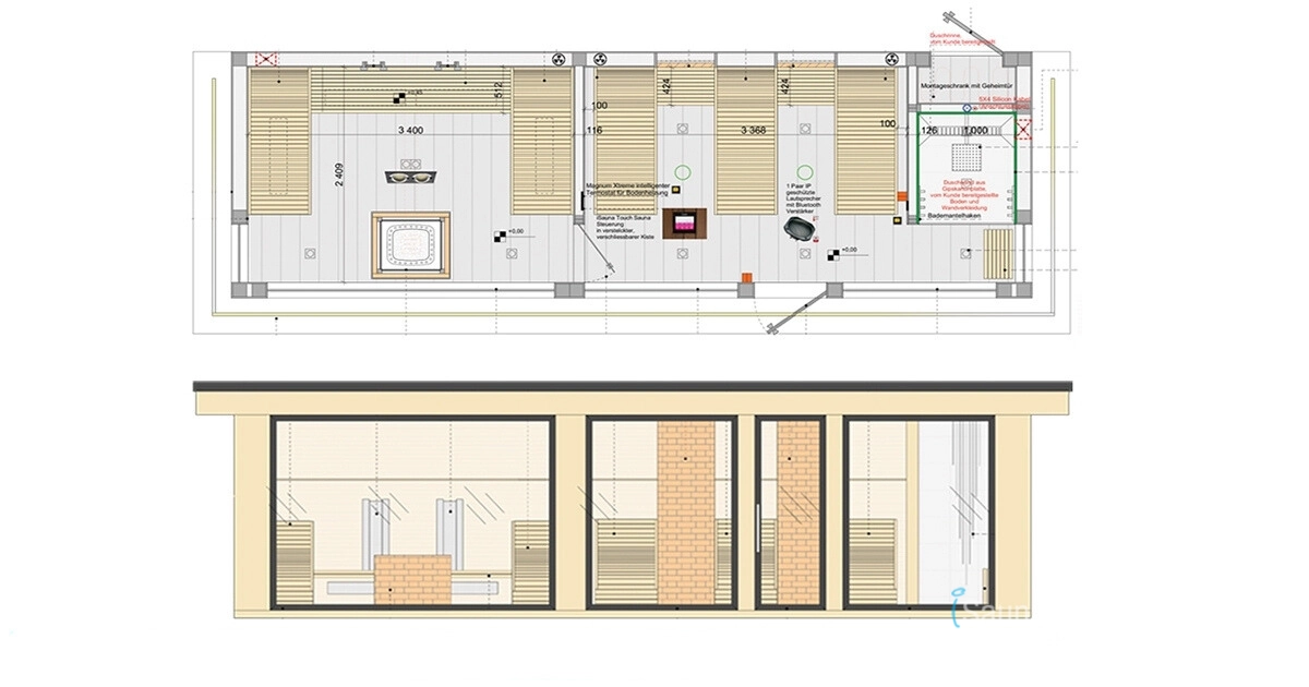
Egyedi tükörszauna

V.I.P Lovarda, másképp, mint mások

Kültéri szauna, wellnessház, mininyaraló egyedi méretekben

Komplex Lovarda Tervezése

Egyedi szauna wellnessház építés

Prémium szauna élmény az otthonában.
Legyen vendégünk egy - kötetlen -manufaktúra látogatásra!
Kérjük adja meg elérhetőségét és szakértőink keresni fogják.